GOLDBACH Park - Gewerbe 

MFH G02
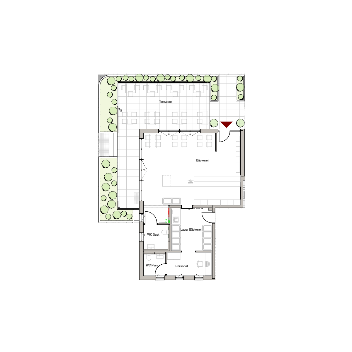
Bäckerei
Etage: Erdgeschoss
Fläche: 102,47 m2
Bäckerei: 61,06 m2
WC Gast:5,34 m2
Lager:14,15 m2
Personal:8,61 m2
WC Personal:4,06 m2
Terrasse:(36,98 m²) 9,25 m2
Gesamtfläche:102,47 m2

MVZ
Praxis
Etage: Erdgeschoss
Fläche: 188,81 m2
Praxis EG: 188,81 m2
Gesamtfläche:188,81 m2